Location des salles

Localisation

Evénements

La Fondation

Locaux disponibles

Restauration

Prestations

Visite de la Maison


Historique


Valorisation des bâtiments


Les locataires

Contacts

Dons

Home page


 

 

 

 

 

 


 
Historique | la fédération | revue de presse | politique | galerie de photos | atout majeur
                     | architectes | inauguration
| message des autorités | plans 

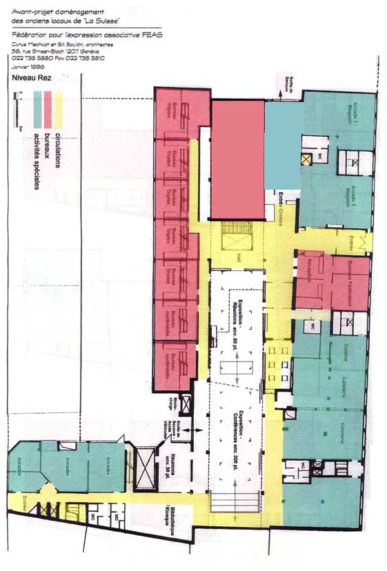
Plans d'origine

Rez-de-chaussée



plan plus grand >>
Niveaux supérieurs



plan plus grand >>
Niveaux inférieurs



plan plus grand >>